特注:千葉県K様 押し入れを木製フラッシュの連動引戸に
特注:千葉県K様 押入れを木製フラッシュの連動引戸に
真壁を活かして
 
                                                            近年の住宅では、和室も大壁(柱などが見えない壁)が主流となって、
『柱・鴨居・長押(なげし)』は、あまり見なくなりましたね。
昔ながらの真壁の和室をご自身でリフォームされるK様より、建具のご相談をいただきました。
和室リフォーム 鴨居を活かした連動引戸
 
                                                            襖を外して鴨居を残した状態で上吊り式引き戸を入れたいとのご相談でした。
ご自身で採寸もしていただき、間口寸法が約2.6mに納まる3枚引違い戸をご提案させていただきました。
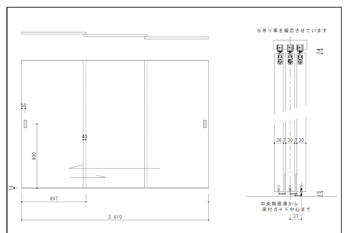
上吊り式引き戸の3枚は苦悩する
実は、、、『上吊り式の引違い戸』で尚且つ『3枚扉』の場合、
真ん中の引き戸は『右か左か、どちらかにしか動かせない』のです。
真ん中の戸をどちらにでもフリーに動かせるようにしたい場合には、どうしても下にレールが必要になります。
それでも『せっかく張り替えたフローリングにレールは付けたく無い』とのご希望でしたので、開閉がフリーではないことをご了承いただき下レール無しの上吊り式連動引き戸で製作をいたしました。
 
                                                            鴨居を活用した納まり
 
                                                            下レール無しで上は鴨居をそのまま活用するので、鴨居の溝(21mm)にキッチリ納まるレールなどの上吊り用の金具を用意しました。
開閉両方向に対応したソフトクローズ機能内蔵ですので、スムースな動きが特徴です。
跳ね返りなどの衝撃も緩和されるので動作も静かです。
 
                                                            K様は塗装屋さんを営んでおられるとのことで、ご自身で柱や鴨居なども塗装されたそうです。
建具は弊社商品『シェルタ』のホワイトをご選択され、木部の濃茶と建具の白とのコントラストは、漆喰壁を連想させますね。
とても良い雰囲気です。
上吊り引き戸ならではの軽快な動きも、大変ご満足頂けました。
 
                                                            この度は、ご依頼ありがとうございました。
完成後のお写真を拝見して渋く格好良い仕上がりに感激いたしました。
今回の事例のように、ふすまから動きの軽い木製上吊り引戸に交換することも可能です。お気軽にご相談ください。
