トイレのドアをオーダードア.comで注文するメリット
オーダードア.comのトイレドアはサイズオーダー出来る
1㎜単位でサイズオーダーに対応しておりますので、新築用の他、交換用のトイレドアも安心してお任せいただけます。
オーダードア.comの標準トイレドア

オーダードア.comの標準トイレドアには、①ライトチェック、②表示錠が付いています。
①ライトチェック・・・ここから見える電気の明かりで、使用中かどうかが分かります。
②表示錠・・・内側から鍵をかけると、外側の表示の色が変わるので、使用中かどうかが分かります。
トイレドアをオプションでカスタマイズ

自社工場で製作しているので、カスタマイズも自在です。
オプションで様々なご要望に対応出来ます。
・ガラリ
・アンダーカット
・小窓
上記のオプションからお選び頂く他、
表面の色柄を取り寄せたものや、特殊な窓の形など、特注の製作も出来ます。
トイレドアもオーダードア.comにご相談ください。
オプションなど様々なご要望にお応え出来ます。

【トイレドアに表示錠】
標準で装備している表示錠は、使用中かどうかが外から確認できます。
緊急事態には外から解錠出来る機能も備わっています。
その他、デザインの違う錠など、別のものにしたい場合のご要望もお気軽にご相談ください。

↓↓サイズオーダー出来る規格品『ラフィーノ』の無料サンプルはこちら↓↓
要望に合わせたトイレドアで、トイレを快適空間に
昔々、トイレは母屋の外にあり、少し時代が進むと室内に設置されるようになりましたが、臭いなどを考慮して主な部屋からは離れた場所に設けられていました。昔の設置場所やデザインでは、トイレは薄暗いイメージの空間でした。

更に時代が進むと、現在の水洗トイレが普及してトイレのイメージは光の差し込む居心地の良い場所になりました。
近年ではもっと居心地のいいトイレにするために、芳香剤やインテリア雑貨に関心が向いています。訪ねて来られたお客様がよく見る場所でもあります。
トイレのドアを使いやすいもの、デザイン性の有るものに変えることで、トイレを心地の良い場所として、もっとグレードアップさせられます。

トイレのドアサイズと空間の大きさ
トイレの空間の広さによって、設置するドアの適切なサイズや開き方が変わります。
広さごとの適切なドアのサイズや開く方向をご紹介します。

トイレに必要なスペースは、最低でもこれくらいは欲しい広さです。
こちらの場合、設置する便器の大きさにも注意が必要になります。
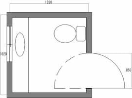
ドアは内開きでは便器にぶつかってしまう広さのため、必ず外開きで設置してください。
外開きでないとトイレのドアは開閉時、正常に可動しないものになってしまいます。


空間の大きさでは、外開きが無難ですが、便器が小さいものであれば内開きも可能です。


パウダールームの仕様にも充分な広さで、扉の開閉にも余裕があるので
この広さに設置する場合のドアは、内開きがおすすめです。
内開きにすることで、廊下やホールなど外のスペースを広く確保できます。
トイレの扉を片開きドアにする場合

片開きドアを考えた場合、注意したい点は
- 片開きドアは開閉する時、内側もしくは外側にスペースが必要
- 外開きの場合は中が丸見えになるので、便器の位置の考慮が必要
- 内開きの場合は、中で人が倒れた時に扉が開けられなくなる可能性がある
近年では新築やリノベーションでトイレの扉を片開きドアにする場合、トイレの前の廊下のスペースを広く取り、外開きにすることが主流となっており、もしもトイレの中で人が倒れるような緊急事態が起きた時、外から開けられるように安全面が考慮されています。
外側にスペースが取れない場合は、引き戸や折れ戸などを採用しています。

トイレのドアノブ

現在お使いのトイレのドアのドアノブが握り玉タイプの場合、新しいドアをレバーハンドルのドアに変えることで使いやすさを実感できます。
また、レバーハンドルは種類も豊富なのでデザインにこだわることができます。
見た目と使い勝手の良さで、トイレをよりくつろげる空間へ変化させることが可能です。
オーダードア.comでトイレのドアをセミオーダーすることも出来ます。

↓↓↓豊富な種類のレバーハンドルでセミーダーはこちら↓↓↓

トイレの扉を引き戸にする場合
施設や病院などではトイレの扉に引き戸を採用しているところが多くあります。開閉時に、トイレの中や外にいる人に扉があたる事故が防げるため、安全面から選ばれています。
トイレの扉を引き戸にする場合は、トイレの内側や外側にはスペースを取らないのですが、開口の左右どちらかに扉本体をスライドさせて可動するスペース(袖幅)が必要になります。

引き戸の採用を考える場合の注意点は、
- ドアよりも多少隙間ができるので気密性は劣る
- 引き込む壁が要るので間取りに考慮が必要
引き戸を設置できるスペースさえあれば、開閉のしやすさや出入りのしやすさから引き戸がおすすめです。引き戸の採用はバリアフリーに適しています。

片開きドアを手前に開く際には、後ろに下がって身をかわす必要がありますが、引き戸はスムーズに出入りすることが出来ます。
特に新築をお考えの方は将来を見据えて、トイレに引き戸を選択される方が増えています。
折れ戸を採用する方もいらっしゃりトイレのドアも、近年では様々な開き方のタイプが選択出来るようになりました。

トイレのドアは、トイレのスペースや廊下の広さに考慮して、
片開きドア・引き戸・折れ戸など様々な開き方の中から、ご自宅の間取りに合わせてお選びください。
ライトチェックや明り取り小窓、表示錠など必要なオプションもご相談ください。
オーダードア.comではご希望に合わせたトイレのドアを製作いたします。 ご不明な点はお気軽にお問い合わせください。
